


Ort: 2543 Lengnau
Bauträgerschaft: Privat
Leistungen: Grundlagenermittlung, Vorprojekt
Status: Abgeschlossen
Jahr: 2021



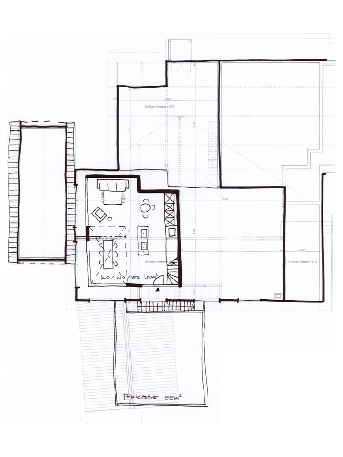
Das Haus im Haus. Oder besser gesagt: Das Haus im Dach. Losgelöst von der Fassade und dessen Tragwerk sind zwei Wohnungen entworfen. Mit Wandversätzen werden neue Aussenbreiche geschaffen oder der Wohnraum vergrössert. Die bestehende Fassade wird punktuell geöffnet, um das richtige Licht einzufangen. Die Wohnungen sind übereinander oder nebeneinander, je nach Konzept. Offene Räume, Kochen mit Ausblick und flexible Grundrisse prägen den Entwurf.







