
Ort: 3076 Worb
Bauträgerschaft: privat
Arbeitsgemeinschaft: Studio Format GmbH
Leistungen: Vorprojekt bis und mit Bauprojekt und Bewilligungsverfahren
Status: abgeschlossen


Umbauen. Geschickt und sorgfältig wird das Reiheneinfamilienhaus in Worb neu gedacht. Und trotzdem: Es respektiert die Geschichte der Strukturgruppe Sonnhalde, die von Edouard Helfer von 1967 bis 1970 erbaut wurde. Die Westfassade wird für die gewünschte Wohnraumerweiterung neu gedacht. Historische Elemente werden beibehalten, zeitgenössische Bauteile ergänzen. Zudem wird die Ölheizung wird durch eine aussen-aufgestellte Luft-Wasserwärmepumpe ersetzt. Die Wärmeverteilung erfolgt über neue Radiatoren. Strom und Wasser wird neu verlegt.



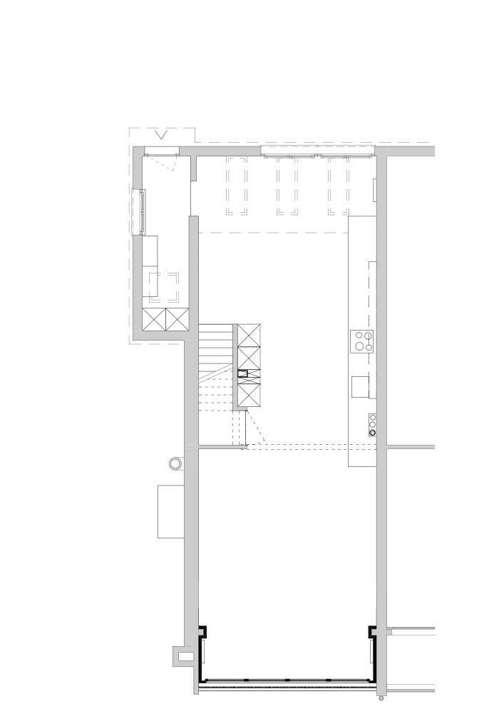
Im Innern wird entschlackt und geöffnet. Die Innenwände werden ersetzt. Alle. Im Erdgeschoss werden auch keine neuen gebaut. Der längliche Raum wird in seiner vollen Grösse erlebbar. Das Küchenmöbel begleitet; konsequent und treffend. Die Fensterfront lädt zum Öffnen ein, so wird das Wohnzimmer je nach Saison zum Balkon. Im Obergeschoss wird mit neuen Trennwänden und Einbaumöbel sparsam mit Raum und Fläche umgegangen. Im Untergeschoss wird etwas aufgeräumt aber nicht viel mehr.
Farbkombinationen, Kontraste und Akzente beleben den Raum. Geschärft auf die einzelnen Räume wird eine einmalige Atmosphäre geschaffen. Mutig? Mag sein. Hübsch? Definitiv.


















